咨询
黄金海岸中心区翠湖苑公寓-Aura 房源ID:52
售价: 0
租金回报年率:5%
  • 类型:
    公寓和单元房
  • 属性:
    公寓
  • 房型:
    2卧室、1卫浴、1车位
  • 建筑面积:
    77m2
  • 占地面积:
    77m2
服务:
购房投资讲座;低利率贷款服务;推荐律师,评估师,建筑师,售后包租及管理
馈送:
购房送签证,购房返还看房旅游期间的费用(5天):馈送部分有偿服务项目
荣誉:
澳大利亚联邦政府授予的“可信赖企业”称号
中国电话:4000002676
澳洲电话:1300363950
澳大利亚澳中国际旅游有限责任公司
澳 洲 房 地 产 事 业 部

详细参数
  • 所在州昆士兰州
  • 所在市黄金海岸
  • 地址33 Lakefront Cres, Varsity Lakes QLD 4227
  • 楼盘可选户型两室一卫一车位
  • 占地面积77m2
  • 楼盘交房日期2017年
  • 租金回报率5%
  • 该区域中间价位435000澳币
  • 该区域人口数量15537
  • 交易政府印花税7%
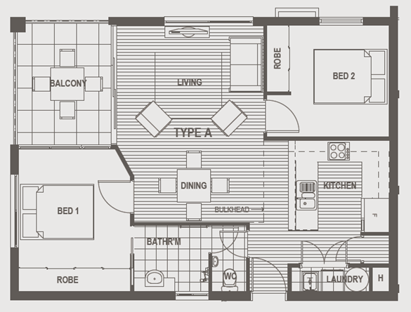
房型平面图

项目/房产描述

AURA公寓(翠湖苑)位于黄金海岸Varsity Lakes中心区,具有得天独厚的地理位置优势,方圆8公里以内拥有20所学校、大型购物中心、各种休闲娱乐活动以及成熟的铁路交通系统连接布里斯班,让您享受触手可及的便利生活。在翠湖苑,从顶楼天台花园下至清澈明亮的泳池,各种休闲设施齐备,完美诠释舒适惬意的生活体验。每间公寓将充分展现最美不胜收的风景,房间自然采光充裕,并伴随一阵阵清新的海风徐来,景色延伸至伯利角,黄金海岸腹地以及校队湖各区域并跨越至布罗德海滩林立的高楼大厦,独一无二的临水地理位置让您无遮挡尽享360°美景。完美生活,一切尽在翠湖苑!


Aura的1室、1+1室、2室和3室公寓都采用宽敞的流线型设计,可欣赏Aura的迷人美景。所有的公寓配有精美装饰、厨房(配有高档电器)以及现代浴室。Aura采用开放式设计,比同类型的公寓要大20%的实用面积。每套公寓的角度都经过精心设计,保证最大范围的水域视角。屋顶露台和禅宗花园,可欣赏湖滨美景,毗邻泳池的是带玻璃墙的健身房,同一层还有桑拿室和spa室。景观露台带有泳池、2个宽敞的烧烤小屋(带烧烤架)。


周边环境描述

Aura位置独特,坐落在黄金海岸中心位置校队湖的核心部位,湖区环绕、景观开阔、交通四通八达,地理位置独一无二,无可复制。            

购物

  • 7分钟到Robina Town Shopping Centre 城镇购物中心

  • 19分钟到Surfers Paradise 冲浪者天堂

教育                                                                              

  • 8分钟到Somerset College Private School

  • 3分钟到Bond University 邦德大学

  • 26分钟Griffith University格里菲斯大学

娱乐                               

  • 14分钟到Broadbeach                               

  • 19分钟到Surfers Paradise 冲浪者天堂                              

  • 9分钟到Cbus Stadium 体育馆                             

  • 3分钟到Market Square - shop, restaurants &cafes 集市广场          

  • 14分钟到Jupiters Casino 木星赌场                        

  • 21分钟到Springbrook National Park                       

  • 20分钟到Warner Bros,Movie World 电影世界            

  • 24分钟到Dreamworld 梦想世界                          

  • 26分钟到Sea World 海洋世界                           

交 通

  • 8分钟到Bus Stop公车站                                 

  • 5分钟到Varsity Lakes Railway Station                     

  • 9分钟到Robina Railway Station                          

  • 5分钟到Varsity Lakes Train Station                                 

  • 28分钟到Gold Coast International Airport 黄金海岸国际机场 

医疗

  • 3分钟到Gold Coast medical precinct 黄金海岸医疗区  

  • Varsity 7 day/night Medical Centre 24小时医疗中心 

地理位置
我们的服务

提供购房前期的服务:

1、 我们公司驻上海公司可以为您提供半价的签证服务;

2、 根据您的看房需求,我们为您定制看房行程,建议5-7天的行程。

3、 全程车接车送,专业房产顾问陪同看房及游览。

4、 根据您的需求,我们会安排一次免费的房产专家;律师;金融贷款专家的面对面交流的机会。

5、 会陪同并帮助您到银行开立您在澳洲银行的银行账号及开通网银。

提供购房期间的服务:

1、 帮助您确认律师,并和律师签署购房委托合同;

2、 帮助推荐2-3个资深贷款专家备选,并同确认的金融贷款专家确认贷款合约;

3、 帮助您和房产销售商确认合同条款并由您的律师审核后正式签署合同。

4、 协助验收房产然后进行交割。(主要工作由律师和贷款机构帮助您操作执行。)ing

5、 如果您的房产属于投资方,我公司提供租赁代管的后期服务。

6、 为购房客户提供学子留学游学服务。如果您所购房产是由来澳读书的孩子居住,18岁以下我公司提供监护人服务。提供找工及日常生活服务(有偿)。

7、 如果您购买的是开发土地,本公司提供:建筑规划师进行规划设计并负责上报当地政府批准;负责建筑施工图的设计并负责建筑施工许可的批准;负责建筑商的推荐(2-3家),协助签约建筑合同;负责会计师的推荐,保证您的建筑资金安全;负责验收师的推荐,确保您的建筑质量。协助交付验收,并保证出具由政府签署的允许入住的报告。

我要咨询
房产顾问
名字:
联系电话:
电子邮箱:
微信账号:
留言:
我想咨询: 
我们的隐私声明明确说明了个人信息的存储方式以及您对个人信息处理的访问、纠正和投诉方法。